Project Management

Mesquite Custom SFR
Residential building
3,000 sf

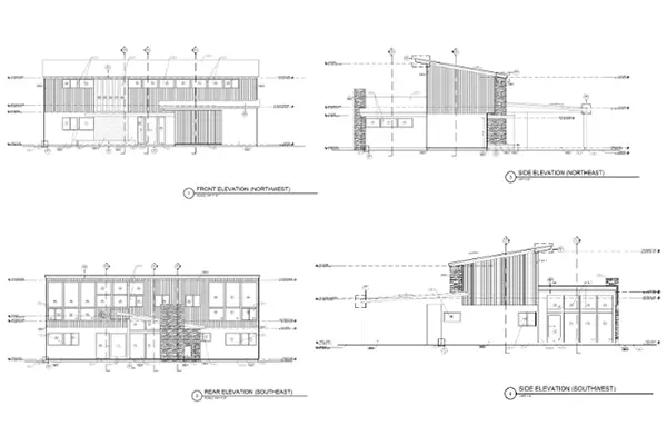
Project Management
Residential building
3,000 sf

Completed April 2021
Residential building
1,000 sf EIFS construction

Completed March 2020
Commercial Building
FDA Approved
10,000 sf Block Construction
Wood Trusses

Completed September 2020
Commercial TI
1,400 sf


CMU Construction

Completed August 2022
Residential building
1,400 sf

Conceptual Rendering

Project Management
Residential building
3,500 sf

Completed September 2021
Commercial TI
1,400 sf